2023-08-17工业车间为什么要购买除湿机
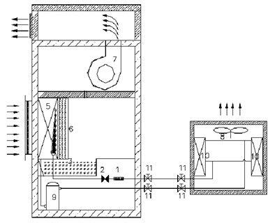
众所周知,无论是家庭还是工业,除湿机的应用都是非常普及,但是有许多人还不明白,工业车间为什么要购买除湿机,它能够为工业生产提供哪些帮助?下面安诗曼环境给大家普及一下。工业领域为什么要使用购买除湿机?因为车间的湿度高低直接影响产品的生产效率以及质量,不同行业对除湿的需求也是不同的,例如制药、锂电池、食
了解详情安诗曼电器
手机:133-6050-3273
微信:133-6050-3273
地址:广东深圳坪山区青松西路8号鸿合科技园

众所周知,无论是家庭还是工业,除湿机的应用都是非常普及,但是有许多人还不明白,工业车间为什么要购买除湿机,它能够为工业生产提供哪些帮助?下面安诗曼环境给大家普及一下。工业领域为什么要使用购买除湿机?因为车间的湿度高低直接影响产品的生产效率以及质量,不同行业对除湿的需求也是不同的,例如制药、锂电池、食
了解详情
工业除湿机可用于纺织厂的防潮和除湿,如果一家纺织厂想提高竞争力,在同样的生产技能和水平下更加注重细节,就更有可能在许多纺织厂脱颖而出。这里我们将详细讨论纺织厂的湿度控制。湿气无处不在,它的危害不亚于一些看得见摸得着的问题。例如,如果冬季空气湿度低,有必要控制
了解详情
妙法三:仪器法防潮除湿还可以借助科技手段,动员家中一切有除湿作用的电器来降低室内的空气湿度。如今,一般家庭使用的空调器都有除湿的功能。不过,用空调器来调节室内空气湿度的方式见效较慢,一般需要两三个钟头,而且会使室内的人感到寒冷。若不满意空调器的除湿效果,不妨
了解详情
加湿机厂家与经销商合作的过程中,一味追求销售额的提升,经销商疲于奔命,使出了浑身解数都无法完成销量,只能眼睁睁看着年底返利到厂家拿几个点。厂家出于市场整体布局,提高门槛调换经销商,对于合作好但发展速度慢于厂家的经销商失去耐心便开始调整策略,想方设法要换掉原有经销商,这时的经销商只能任人宰割。加湿机厂
了解详情
冬雨绵绵衣服难干?快用除湿机:2019年这开始的十天时间对我们非常不友好,除了下雨还是下雨,就没有见过太阳公公。杭州也不例外,反正小编的被子从去年12月份后就没有晒过,每天睡觉的时候都需要使用电吹风吹一下,要不然钻进去肯定是潮乎乎的。上次洗澡连裤衩都没的换了,也是用电吹风吹干的
了解详情
您是否遇到过家里地板非常湿润甚至现已渗出水珠的情况?发生这种情况一般是在南方地区,特别是住在一楼的住户,一下了雨受了潮这种地板湿润的情况就会非常的显着,那这该怎么办呢?回南天地板湿润怎么办—正确开窗通风许多家庭为了防止水汽进入,家里一天到晚都紧锁门窗,认为只要阻隔与室外空气的接触就可以有用
了解详情
调温型除湿机适合高温环境中使用,在一些温度变化比较大,温度比较高的场合下,使用调温型除湿机的话,对于降低环境内温度和湿度会有比较显著和良好的效果,给我们的生产和工作带来的极大的方便。调温型除湿机的湿装置由除湿蛋和承座组成
了解详情
管道除湿机使用指南:管道除湿机是一种采用蒸发器来给空气降温除湿的设备,可以有效的清除潮湿,降低空气湿度,具有效率高、振动小、噪声低的优点,而且技术成熟、可靠性高、可调节性强,是企业防潮除湿的好选择。有了它就不用担心潮
了解详情
纺织车间加湿很重要,纺织车间加湿机显身手新闻资讯:从全国各地很多纺织厂的日常生产中,车间环境空气湿度是影响其正常生产进程和纺织品品质的一大主要因素;保持适宜的湿度环境可以有效的保证纺织生产的顺利进行及产品质量的提高和工人的身体健康。
了解详情
工业除湿机常见故障分析及解决方法工业除湿机广泛应用于电信通信、电子电器、服装鞋业、中药烟草、药厂医院、粮食果品、皮革加工、玻璃精工、纸业图书、喷涂印刷、银行证券、宾馆酒店、游泳馆、博物馆、档案馆、ZF机关、科研院校、企业商场、地下工程(地铁、人防工程、过江隧道)等行业。具体的使用场地有机房、程控交换
了解详情
一听到“故宫院长”这个头衔,给人的感觉就是庄严、充满智慧、略带一点古板。但万万没想到,我们的故宫院长单霁翔,居然还是一个顶级的段子手。最近他亲授“如何让领导快速拨款”的段子迅速的在网络上火起来!当领导来视察时,工作人员把乾隆皇帝的方印搬出来,发现方印
了解详情
任何地方经历洪水之后,在48小时内干燥受影响的区域是至关重要的,因为这是霉菌开始生长的时间。物品湿的时间越久,受到霉菌和细菌的损坏可能性越大。由于用空调干燥并不实用经济,所以除湿机用于修复洪水损坏是应急干燥操作的最佳工具之一。为什么选择工业除湿机以防洪水损坏?当任意空间成为洪水损害的受害者时,一种常
了解详情
1.间歇通风法。把朝南或东南方向即上风方向的门窗关闭,只开启下风方向的门窗,以减少水汽进入室内。天气转晴时,可打开所有的门窗,以加速水分蒸发。不过中午外面的空气湿度处在最高值,不宜开窗,应在下午或傍晚,气候相对干燥开窗调节。2.石灰吸潮法。石灰是良好而简单的吸附剂,1公斤生石灰能吸附空气中大约0.
了解详情
对于回南天防潮,网上出现了不少防潮的小妙招,其中一些方法听起来挺不错、但实际用起来怎么样还不知道呢。到底哪种方法最可信靠谱呢?下面我们来说一说空调、暖风机和除湿机这几个防潮电器的优劣对比。要防潮,首先我们得知道为什么会受潮、根本原因在哪儿,才能从根本上避免受潮,以免治标不治本。而回南天时期返潮现象严
了解详情
人们之所以研发和研制出了家用除湿机,主要就是为了可以在一些环境很恶劣空气湿度很大的情况下,可以借助家用除湿机来改善这种环境,以提供舒适的环境或是保持一些容易受潮的物品的完好性。首先,在家用除湿机的帮助下,我们可以避免家居环境的空气湿度过高而产生的一些霉变或者霉菌,确保了家具的干燥性和食品的安全性;其
了解详情
除湿机坚信很多人都是有听闻过,可是大部分人针对除湿机的认知能力仅仅滞留在家庭装除湿机。可是伴随着高新科技持续发展趋势,如今除湿机技术性也越变越好,在其中工业除湿机就可以用以工业化生产。坚信很多人会有疑问,工业化生产为何要应用除湿机,假如一定要应用除
了解详情
工业除湿机近几年来逐渐出现在人们的视野中,特别在南方地区的使用率比较高,它被用来调控企业生产环境或仓库的湿度,以此来避免企业在生产和存储中物品受到的损害。近年来随着产品技术发展迅速,工业除湿机的应用范围越来越广,许多企业对于除湿机的需求也逐年上升,例如在机械制造行业的应用。以前企业把设备的生锈、腐蚀
了解详情
让人烦心的“回南天”来了!不仅造成大家生活的不便,同时湿漉漉的天气也会使南方的电梯故障经常发生。在此,深圳质监呼吁各位:注意电梯使用安全,为防患于未然,请做好电梯维保等预防工作。在回南天的日子里,大家要多留意电梯运行的异常。一
了解详情
家里有了除湿机,天天下雨也不潮新闻资讯:春天来了,天气转暖,雨水多了,潮湿的日子也跟着来了。阴阴的天,细细的雨,衣服晾不干的,被子潮乎乎的,如果长期生活在潮湿的环境中,湿气很容易进入人体,引发风湿等疾病。此外,潮湿的空气还会对建筑、家具、电器造成伤害,比如墙皮脱落、家具
了解详情
工业使用除湿机越来越普遍,无论是生产车间,还是工厂仓库,都是需要用到除湿机的。有人会问:工业除湿机需要经常清洗吗?清洗过程中需要注意什么?下面安诗曼为大家讲解一下。从保养和清洁角度来看,工业除湿机是需要
了解详情